REQUEST A TOUR If you would like to see this home without being there in person, select the "Virtual Tour" option and your agent will contact you to discuss available opportunities.
In-PersonVirtual Tour

Listed by Yvette Sloan • NextHome Experiences
$ 115,000
Est. payment /mo
Active
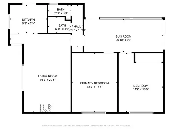
14613 Robinson Avenue Clearlake, CA 95422
2 Beds
1 Bath
904 SqFt
UPDATED:
Key Details
Property Type Single Family Home
Sub Type Detached
Listing Status Active
Purchase Type For Sale
Square Footage 904 sqft
Price per Sqft $127
MLS Listing ID CRLC25192953
Bedrooms 2
Full Baths 1
HOA Y/N No
Year Built 1954
Lot Size 4,792 Sqft
Property Sub-Type Detached
Source Datashare California Regional
Property Description
Looking for a project to invest in ? Here you go. Priced well. This 2 bedroom 1 bath with nice size screened in room has so much potential. Home sits on nice level flat lot . Back yard has small wood shed and on side of home has metal shed. Nice patio in front. Home is close to lake for fishing and enjoyment.
Location
State CA
County Lake
Interior
Heating None
Cooling Wall/Window Unit(s)
Fireplaces Type Living Room
Fireplace Yes
Laundry None
Exterior
Pool None
View Other
Private Pool false
Building
Lot Description Level
Story 1
Water Public
Architectural Style Cottage
Schools
School District Konocti Unified

© 2025 BEAR, CCAR, bridgeMLS. This information is deemed reliable but not verified or guaranteed. This information is being provided by the Bay East MLS or Contra Costa MLS or bridgeMLS. The listings presented here may or may not be listed by the Broker/Agent operating this website.





